top of page

BARBIE PALOMINO
Barbie is an independent interior designer near North Hollywood. We worked together on a few projects before the pandemic, with my main focus being the full remodel of a high-end residential home.
APPLICATIONS
Rhino
Photoshop
SKILLS
Interior Design
Material Spec Sheets
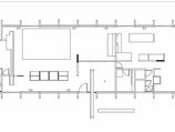
THOUSAND OAKS REMODEL
THOUSAND OAKS
RENDERINGS

SHOP DRAWINGS

SHOWCASE HOUSE CONCEPT
showcase

bottom of page


















