top of page

B.E.E. CONSULTING
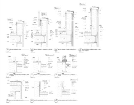
This company functions as a waterproofing consultant for large-scale architectural projects in the Pacific Northwest (PNW). I was appointed as the sole drafter in our Portland office, where I managed approximately 20 active construction documents across the states of Oregon, Washington, and California. My responsibilities included utilizing architectural details and plans to effectively communicate to contractors the materials utilized and the proper method for overlapping each layer.
APPLICATIONS
AutoCAD
Teams
Excel
Word
Remote Access
SKILLS
CSTN Sets
Project Coordination
Architectural Coordination
Environmental Design
ELEMENTARY SCHOOL
ELEMENTARY SCHOOL
SELF-STORAGE
SELF STORAGE
STUDIO CITY
STUDIO CITY
bottom of page




























